CAMPUS POLITÉCNICO. EDIFICIO A
   
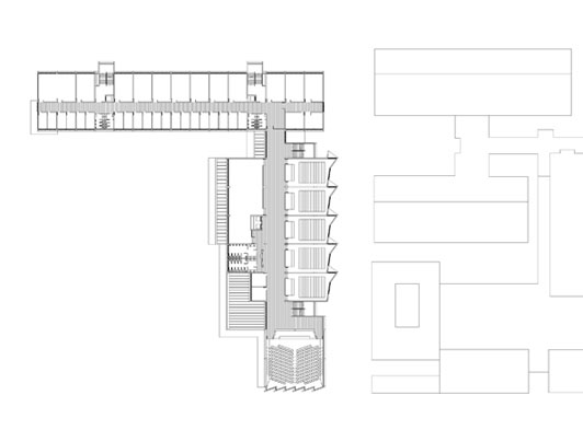
La implantación del edificio en la parcela contigua al acceso al Campus Politécnico, ha determinado, en gran medida, la configuración del mismo mediante una planta en L que le permite abrirse hacia los espacios de acceso al Campus. Cada uno de los bloques que constituyen el edificio corresponden a usos claramente diferenciados. Así, el Bloque 1, dispuesto en sentido perpendicular a la calle de acceso, está destinado a espacios docentes y servicios generales. Este bloque consta de tres plantas alzadas servidas por un corredor longitudinal, que conecta con el correspondiente espacio de distribución del Bloque 2. Las cinco plantas alzadas de este último bloque, que se dispone paralelo al viario posterior, están destinadas a laboratorios y despachos de los departamentos de Ingeniería Electrónica e Informática. La configuración del edificio pone de manifiesto la autonomía de las dos alas que lo componen, traduciendo las diferencias derivadas de su organización interna y el papel que cada uno de los bloques desempeña en la definición de los espacios exteriores. El carácter unitario de la resolución constructiva contribuye, sin embargo, a dotar de unidad al conjunto. El sistema constructivo adoptado para los entrepaños de las fachadas longitudinales, permite asumir las diferentes solicitaciones derivadas de la organización interior y de las necesidades de las diversas zonas, mediante la combinación de tres elementos: la carpintería exterior de dimensiones variables, los paneles metálicos que permitan la colocación del aislamiento térmico en la cara exterior de las paredes de cerramiento y las lamas orientables de aluminio, que desempeñan la función de elementos de control solar y de protección.
         
Memoria
Publicaciones
Documentos de Arquitectura. Nº 43. 1999
Revista Arquitectura. Nº 320. 2000
La Universidad de Zaragoza/Arquitectura y Ciudad. 2008.
Ficha técnica
Promotor  Universidad de Zaragoza
Superficie construida  14.744 m2
Situación  Calle María de Luna. Zaragoza
Fecha de proyecto  Diciembre de 1995
Fecha de final de obra  Mayo de 1999 (Dirección de obra: José Luis Pérez Vicén. D.G.A.)
Programa  BLOQUE 1. 17 aulas de Ingeniería, cafetería, sala de usuarios, sala de estudio (128 plazas) y sala de actos (250 plazas) /   BLOQUE 2. 38 laboratorios docentes y de investigación y 84 despachos correspondientes a los departamentos de Ingeniería Electrónica e Ingeniería Informática
Fotógrafo  Jacinto Esteban

 

 

 

 

 

 

 

 

 

 

 

 

 

 

 

             

 

BASILIO TOBÍAS PINTRE. ARQUITECTO